This is the place where the majority of the warbird (aircraft that have survived military service) discussions will take place. Specialized forums may be added in the new future
Fri Dec 02, 2022 10:44 pm
Surprisingly not a lot of room for aircraft at the National Aviation Museum of Korea:
National Aviation Museum of Korea(Source:
ArchDaily)
Also, another student project:
Tue Dec 06, 2022 6:19 pm
The Estrella Warbirds Museum is planning a major "west expansion" that involves one large hangar, three smaller hangars, and two exhibit buildings connected by a great hall:
Estrella Warbirds Museum(Source:
Estrella Warbirds Museum)
(Source:
Paso Robles Press)
(Source:
YouTube)
Mon Dec 12, 2022 7:27 pm
The Western Museum of Flight exists in very cramped quarters, so it is unsurprising they had a rendering for an unrealized move to the southeast end of Zamperini Field in a newsletter from 2010:
Western Museum of Flight(Source:
Western Museum of Flight)
Thu Dec 15, 2022 5:36 pm
The Royal Air Force Museum Cosford is embarking on a four part "Midlands Development Programme". The four focuses are: a Collections Hub, a Learning Centre, landscaping and sustainability, and a new exhibition about the Falklands Conflict to today:
Royal Air Force Museum Cosford(Source:
Royal Air Force Museum)
(Source:
Royal Air Force Museum)
(Source:
Royal Air Force Museum)
(Source:
Royal Air Force Museum)
(Source:
Royal Air Force Museum)
(Source:
Royal Air Force Museum (Parent Page Unknown))
(Source:
Warbirds News)
Thu Dec 15, 2022 11:22 pm
Due to the fact that you run out of room in the Aviation Heritage Museum, the side car park becomes an extension to house two aircraft, the Panavia Tornado GR4 and the future McDonnell Douglas F/A-18 Hornet.
Fri Dec 23, 2022 12:30 am
DADE wrote:Due to the fact that you run out of room in the Aviation Heritage Museum, the side car park becomes an extension to house two aircraft, the Panavia Tornado GR4 and the future McDonnell Douglas F/A-18 Hornet.
There's so many parking lots around your museum, it took me a while to realize the extension is going to be located to the east of the south wing. Just from looking at a map, has the museum considered enclosing the area between the north and south wings? It would probably be too expensive, but would seem to be the best way to create a lot of additional space.
Also, I realized I never compiled a list of images for the Great Lakes Aviation Museum mentioned in a
previous post:
Great Lakes Aviation Museum(Source:
Great Lakes Aviation Museum)
(Source:
Great Lakes Aviation Museum)
(Source:
Great Lakes Aviation Museum)
Fri Dec 23, 2022 9:44 am
Between the South and North Wing is located two workshops and three demountable (donga) buildings, one demountable has the model display group, and the accessioning group. One other building covers the photo group, plus Tech library room and Magazine library room, and the last one is the main library, plus also one display area where our Huey helicopter was displayed but is now indoors. What you are looking at looks flat ground but between the South and North wing, it has about 30 degrees down slope with steps and a zig, zag wheelchair access. If it was excavated to be flat, then it would be a basement for any building above. One rich lottery winner or corporate billionaire and our dream could come good for a new museum Noha.
The other parking areas are for the retirement villagers, bowling club members, restaurant and social building meeting rooms.
Sun Jan 08, 2023 4:25 pm
As mentioned in a
recent thread, the Planes of Fame Museum is embarking on an expansion at Santa Maria Airport. Phase One of the project will build a 56,000 square foot hangar at the cost of approximately $12 million.
[1] Plans call for groundbreaking in 2023 and an opening in 2025:
Planes of Fame Central Coast Expansion(Source:
Planes of Fame Air Museum)
EDIT (23-06-30): Planes of Fame held an event earlier this month to talk about the plans for their new location. As part of the presentation at least eight new renderings were displayed. Unfortunately, I was only able to find a good head on-picture of two of them:
a "Display Hanger [sic] Wall Concept" and a "Maintenance Hanger [sic] Wall Concept" (
Source). The others are visible in a
picture from the side (
Source), but they are difficult to make out.
EDIT (24-01-22): I came across an
instance of the front elevation mentioned in the edit above in an
article in the Santa Maria Times. Note the name "The Officer's Mess Event Center" over the separate entrance on the right side of the building. (Also, for what it's worth, the image of the P-38 was
sourced from Wikimedia Commons.)
EDIT (24-06-16): PoF recently updated their website to include the renderings from the presentation mentioned above:
Planes of Fame Central Coast Expansion(Source:
Planes of Fame Air Museum Central Coast)
Last edited by
Noha307 on Sun Jun 16, 2024 3:32 pm, edited 3 times in total.
Thu Feb 02, 2023 6:01 pm
The Aviation History & Technology Center, formerly the Aviation Museum and Discovery Center and the Aviation Wing of the Marietta Museum of History, has plans for a building and part of the fundraising for that is apparently to be achieved
Aviation History & Technology Center(Source:
Aviation History & Technology Center)
(Source:
Fundraising Brick)
Wed May 17, 2023 1:02 am
The Historic Aircraft Preservation Society in Texas has a rendering for a "Doolittle Skills and Restoration Center" hangar:
Historic Aircraft Preservation Society(Source:
Historic Aircraft Preservation Society)
Sat May 20, 2023 2:33 pm
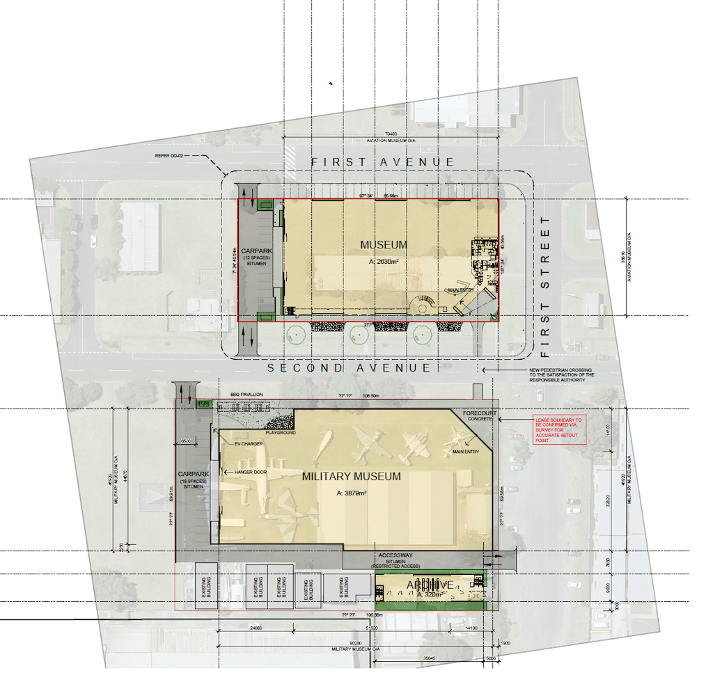
As mentioned in a
recent thread, the Moorabbin Air Museum recently announced it is fundraising for three new buildings (one of which is a three floor archive, hooray!), which will allow them to bring many of the aircraft on display inside. The museum is working with
RPC Architects on the expansion:
Moorabbin Air Museum(Source:
Warbird Information Exchange)
(Source:
Facebook)
(Source:
Moorabbin Air Museum)
(Source:
Vintage Aviation News)
EDIT (24-11-02): Add 2 additional site plans.
EDIT (24-11-29): Add 1 picture.
Last edited by
Noha307 on Fri Nov 29, 2024 8:30 pm, edited 2 times in total.
Sun May 21, 2023 3:50 pm
Here is a rendering for the Historic Flight Foundation's Spokane Felt's Field hangar completed in 2019.
I haven't been able to find online the drawings of the interior, but they did show it with several aircraft inside including the B-25 and DC-3 simultaneously.
- Attachments
-

Sun Jun 04, 2023 8:07 pm
JohnB wrote:Here is a rendering for the Historic Flight Foundation's Spokane Felt's Field hangar completed in 2019.
Thanks!
As mentioned in a
different thread, the Central Air Force Museum in Russia has had its ups and downs, but at some point between 2002 and 2016 a new main exhibit hall was built:
Central Air Force Museum(Source:
Dzen)
The [Hixon] Museum of Flight has started a "Raise the Roof" fundraising campaign to support the construction of a new museum building:
[Hixon] Museum of Flight(Source:
[Hixon] Museum of Flight)
Note: The Hixon Museum of Flight seems to have dropped the word "Hixon" from their name. However, I have elected to continue to use the old name to disambiguate it from the institution in Seattle.
Fri Jun 16, 2023 4:42 pm
Pacific Northwest Naval Air Museum(Source:
Pacific Northwest Naval Air Museum)
(Source:
Pacific Northwest Naval Air Museum)
(Source:
Pacific Northwest Naval Air Museum)
Also, if you missed it, in the sprit of this thread Warbird Kid has started a
thread of what sort of capital developments he would propose for various aviation museums. The first one is about the Mid-Atlantic Air Museum and it is illustrated with a self-created rendering. It's a worthwhile read and I look forward to seeing more museums covered!
EDIT (24-03-03): An earlier drawing for the Pacific Northwest Naval Air Museum's hangar, back when it was still known as the PBY Memorial Foundation, is below:
PBY Memorial Foundation(Source:
PBY Memorial Foundation)
EDIT (25-01-20): Add 3 Pacific Northwest Naval Air Museum entries.
Last edited by
Noha307 on Mon Jan 20, 2025 11:48 pm, edited 2 times in total.
Mon Jun 19, 2023 9:36 am
Noha307 wrote:Also, if you missed it, in the sprit of this thread Warbird Kid has started a
thread of what sort of capital developments he would propose for various aviation museums. The first one is about the Mid-Atlantic Air Museum and it is illustrated with a self-created rendering. It's a worthwhile read and I look forward to seeing more museums covered!
Thanks so much for the plug! I was thinking it is somewhat connected to this thread (though in the "What If" land) and hopefully people will like the concept of the mockups I make. For anyone who wants tot check out my thread see it here:
http://www.warbirdinformationexchange.org/phpBB3/viewtopic.php?f=3&t=73802&p=651684#p651684